Cenniki do pobrania
Świetlik płaski 80x80
Cena regularna:
Cena regularna:
towar niedostępny
dodaj do przechowalni
0
Opis
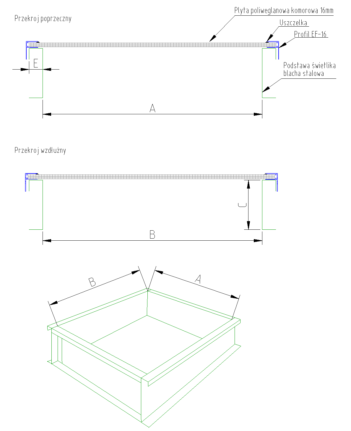
Świetlik stały płaski na podstawie z blachy stalowej ocynkowanej często nazywany również określeniem okno dachowe.
Dla dachów skośnych o spadku minimum 10°.
Wypełnienie z poliwęglanu komorowego w ramie aluminiowej.
Wymiar w świetle otworu A x B: 800 mm x 800 mm
Wysokość podstawy: C = 180 mm
Szerokość krawędzi podstawy: E = 50 mm
Świetliki punktowe doskonale sprawdzają się w mniejszych obiektach, oraz wszędzie tam gdzie z powodów technicznych nie ma możliwości zastosowania standardowego pasma dachowego. Świetliki poliwęglanowe doskonale zastępują kopułki akrylowe.
W odróżnieniu od kopułek świetliki płaskie charakteryzują się większą wytrzymałością. Kolejną zaletą jest fakt że w momencie uszkodzenia płyty jest możliwość wymiany samego PC bez konieczności demontażu i wymiany całego świetlika.


- podstawa z blachy stalowej ocynkowanej
- śruby spinające
- system stolarki aluminiowej surowej wraz z wypełnieniem z płyty poliwęglanowej 16mm 2UV
* świetlik nie zawiera ocieplenia ani obróbek blacharskich